Room to grow in Kadina: ideal start or smart investment
A FOUR-bedroom home on a generous 1795-square-metre block is turning heads in Kadina, offering excellent value for first-time buyers or savvy investors looking for future potential. Located in a quiet, friendly neighbourhood just minutes from the...
A FOUR-bedroom home on a generous 1795-square-metre block is turning heads in Kadina, offering excellent value for first-time buyers or savvy investors looking for future potential.
Located in a quiet, friendly neighbourhood just minutes from the Kadina town centre, the property combines comfort, convenience and room to grow.
The practical layout, modern inclusions and family-friendly design make it ready to move in or rent out.
“This home is the full package — space, comfort, and location,” Ray White Yorke Peninsula principal David Bussenschutt says.
“It’s ready for its next chapter — whether that’s a family home or a promising rental.
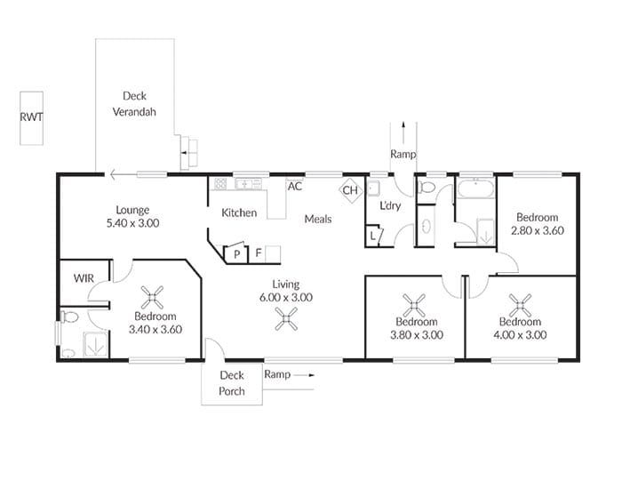
The home features a welcoming open-plan kitchen and dining area with split-system air conditioning, a ceiling fan and a combustion heater to ensure year-round comfort.
A gas cooktop makes the kitchen ideal for family living and entertaining.
There are four bedrooms in total, with the main offering a walk-in robe, ensuite and ceiling fan.
Bedrooms two and three also include ceiling fans, and a central bathroom plus separate toilet support busy households.




A 6.6kW solar system helps keep power bills low.
Step outside and you’ll find a spacious backyard with endless potential.
The alfresco deck area is perfect for entertaining, while a versatile shed offers options for a workshop, storage or rumpus room.
There is even a chook house and ample space to garden, expand or simply enjoy.
“There’s real scope to add value here — the block size alone is a huge drawcard,” agent Samantha Mitchell says.
“The home’s layout and features make it an easy choice for buyers wanting practicality with potential.
Offering an affordable entry into the Kadina market, this property ticks boxes for comfort, space and future upside.
Contact David Bussenschutt or Samantha Mitchell at Ray White Yorke Peninsula to arrange an inspection today.
FEATURE PROPERTY
115 Port Road, Kadina
$585,000
Agent Ray White Yorke Peninsula, RLA 228054
Phone David Bussenschutt 0429 692 511; Samantha Mitchell 0448 902 499