Lifestyle and investment by the coast
“TICKS all the boxes.” That’s how David Bussenschutt and Samantha Mitchell from Ray White Yorke Peninsula describes this two-storey home in Port Hughes. “Whether you’re searching for a forever home or a savvy investment, this residence...
“TICKS all the boxes.”
That’s how David Bussenschutt and Samantha Mitchell from Ray White Yorke Peninsula describes this two-storey home in Port Hughes.
“Whether you’re searching for a forever home or a savvy investment, this residence combines lifestyle with long-term value,” the agents say.
Tenanted until April, the property offers immediate rental income, giving investors peace of mind while securing a quality asset in a proven coastal location.
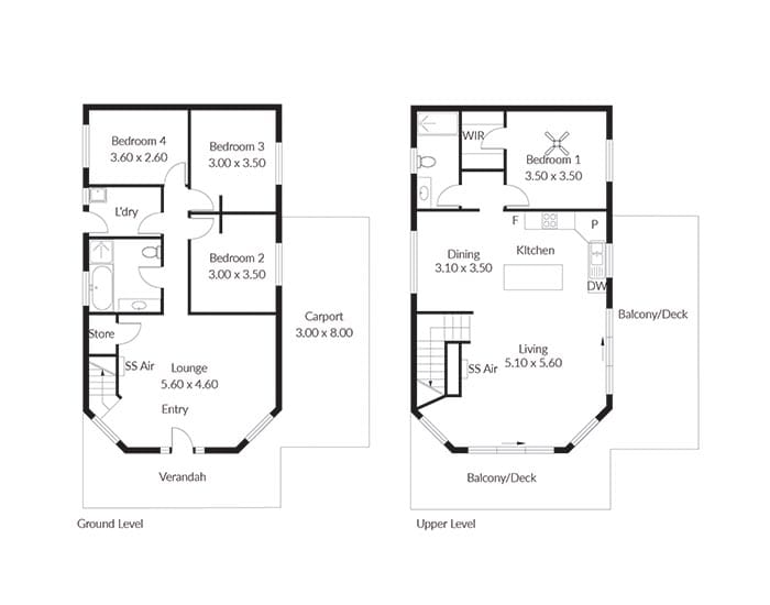
The home features four generous bedrooms, with three located on the ground floor and the master suite upstairs, complete with walk-in robe and private
access to the balcony.
The wrap-around balcony makes the most of elevated sea views — perfect for morning coffee or evening relaxation.
Inside, the well-appointed kitchen includes an electric oven, stove, dishwasher and ample storage.
It overlooks the open-plan living and dining area, designed for easy entertaining and everyday family living.
Split-system air conditioning, a gas hot water service and rainwater plumbed to the home provide comfort and efficiency year-round.





A double garage and carport are complemented by a massive 8.8m x 6m powered shed, with side access thanks to the corner allotment.
“It’s a dream setup for boats, caravans or a serious workshop,” the agents say.
The 788 square metre block also offers a secure backyard, ideal for children, pets or simply enjoying the outdoors.
Set in a quiet cul-de-sac, the property is minutes from the beach, boat ramp, golf course and local shops.
With Port Hughes known for fishing, family holidays and laid-back seaside living, this home offers both lifestyle appeal and investment strength.
“This is a fantastic opportunity,” the agents say.
“Quality homes like this — with a lease already in place — are rarely available.”
Contact Dave or Sam today to arrange a private inspection.
FEATURE PROPERTY
6 Hosking Place, Port Hughes
$745,000
Agent Ray White Yorke Peninsula - RLA 228054
Phone David Bussenschutt 0429 692 511; Samantha Mitchell 0448 902 499